Te koop Half vrijstaand huis Costa Del Sol The Golden Mile € 2.395.000,-
Exclusive townhouse in the Golden Mile, located in the prestigious Monte Marbella Club, in Lomas de Puente Romano.
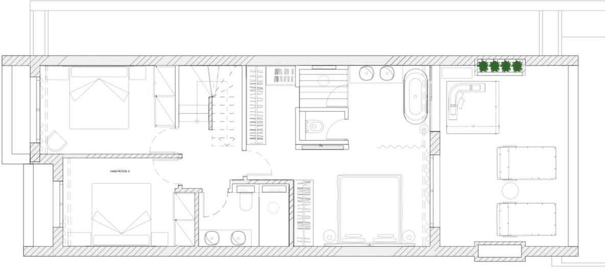
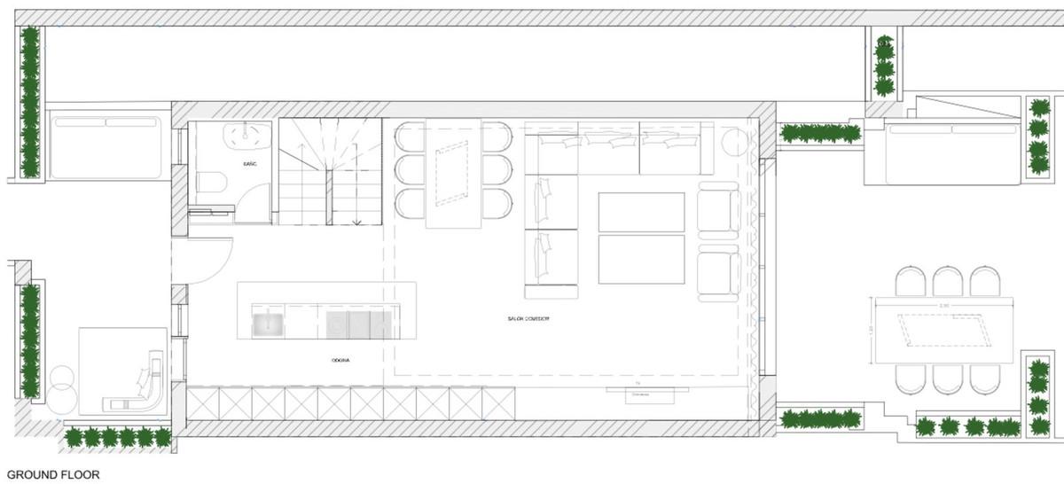
Fully renovated with high-quality materials and elegant design, this property features 4 spacious bedrooms, 3 bathrooms, and a guest toilet.
Large windows provide abundant natural light, a 70 m² terrace offers outdoor space, and the home is set in a peaceful environment just minutes from all amenities.
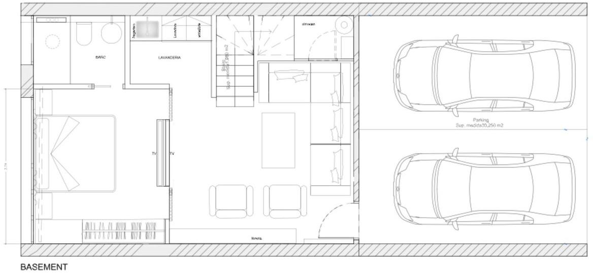
Built in 2005 and renovated on 2025 it boasts 283 m² of living space and private parking for two cars. Secure gated community. Community fee: €450/month.
meer info