Te koop Bovenwoning Costa Del Sol Riviera Del Sol € 429.000,-
**Stunning Duplex for Sale Near Miraflores Golf Course**
Discover the perfect blend of comfort and luxury in this bright and spacious top-floor duplex, offering breathtaking panoramic views that will leave you in awe. Located adjacent to the prestigious Miraflores Golf Course, this property is a dream come true for golf enthusiasts and nature lovers alike.
Step into an open hallway that leads to a modern kitchen, two generously sized bedrooms, one bath room & one guest toilet, and a cozy living room with direct access to one of the two inviting terraces.
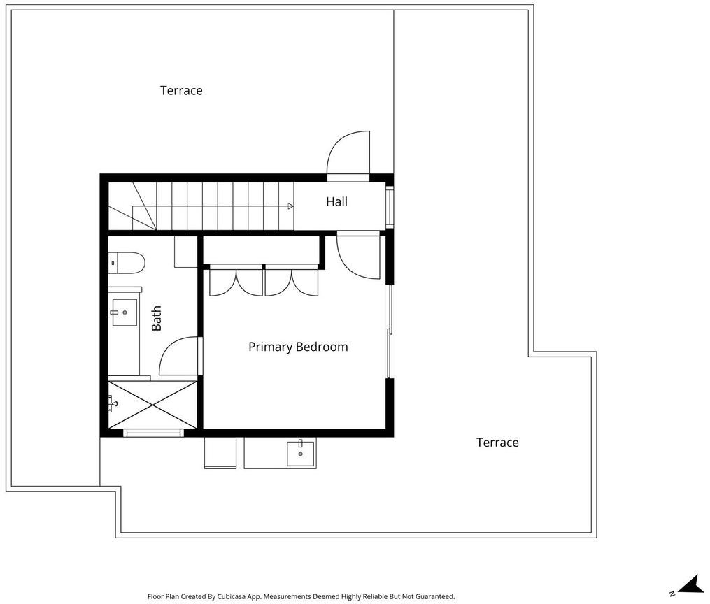
The upper level boasts a magnificent master bedroom complete with an ensuite bathroom, ensuring privacy and convenience. Newly renovated interiors provide a fresh and contemporary feel throughout.
The highlight of this duplex is the exceptionally large wrap-around terrace on the upper level, perfect for entertaining or simply soaking in the stunning views of the sea, mountains, and golf course. With 106 m² constructed and 90 m² usable space, this home offers ample room for relaxation.
Additional features include fitted wardrobes, air conditioning (hot & cold), and a designated parking space included in the price. Residents can also enjoy access to a swimming pool and green areas, making it an ideal retreat.
Don't miss the opportunity to make this exquisite duplex your new home!
meer info