Te koop Vrijstaande Villa Costa Del Sol La Capellania € 1.375.000,- Ref.nr: RSOR5217520
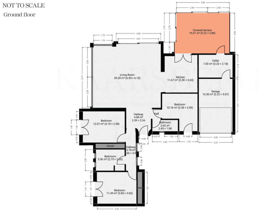
119m²
3
2
| Slaapkamers | 3 |
| Badkamers | 2 |
| Woonoppervlak | 119m² |
| Leefruimte | m² |
| Zwembad | ja |
| Tuin | ja |
| Parkeren | ja |
| Airco | %lng_% |
| Opslagruimte | %lng_% |
| Lift | %lng_% |
| Bouwjaar | 1984 |
| Verdieping | |
| Setting: Close To Shops, Close To Sea, Close To Town, Urbanisation | |
| Orientation: South East, South, South West | |
| Condition: Excellent | |
| Pool: Private | |
| Climate Control: Air Conditioning, Hot A/C, Cold A/C, U/F Heating, U/F/H Bathrooms | |
| Views: Sea, Mountain, Port, Panoramic, Pool, Urban | |
| Features: Covered Terrace, Fitted Wardrobes, Private Terrace, WiFi, Storage Room, Utility Room, Ensuite Bathroom, Marble Flooring, Double Glazing, Fiber Optic | |
| Furniture: Fully Furnished | |
| Kitchen: Fully Fitted | |
| Garden: Private, Landscaped, Easy Maintenance | |
| Security: Electric Blinds, Alarm System | |
| Parking: Garage, More Than One, Private | |
| Utilities: Electricity, Drinkable Water | |
| Category: Resale |